在我们的目录中搜索产品
球阀
蝶形阀
气动阀
气动执行器
电动执行器
执行器附件目

THOR分体式不锈钢球阀 PN 16-40 ANSI 150-300

THOR分体式不锈钢球阀 PN 16-40 ANSI 150-300
球阀
小类 THOR

家族 THOR Split Body PN 16-40 ANSI 150-300

配置 动力
申请详细信息
打印页面
产品代码解码
  • 优点
  • 特性
  • 尺寸
  • 物料
  • 图表和起动扭矩
  • 附件
  • 文档

1.防静电装置(球体、阀杆和阀体间存在常电)
此装置可以避免在易燃和/或易爆环境中静电荷的聚集
阀门在整个寿命周期中的接触安全均具有保障

2.双抗磨环
借助更低的扭矩即可操纵阀门;
相较于单环装置,双环的磨损在运行中更低

3.3组密封件组成的V形密封套件和+O形圈

在定量的循环过后,该装置仍可确保完美的密封性

4.阀杆密封件上的碟型弹簧

封堵因轴的半周旋转磨损而形成的间隙,避免内容物外泄;
确保雪佛龙密封套件(V形)保持紧致,避免在温差显著的环境中出现内容物外泄。

5.石墨弹性密封件

确保外端密封性不受阀门所在环境的温差影响

得益于粗加工至细加工的单一定位,实现更高的轴向对齐精度
更佳的阀门寿命
更小的操纵扭矩

依照执行标准,采用NACE规范认证材料打造的碳钢阀体

更佳的耐腐蚀性保障
更强的材料韧性

在OMAL自有设施内完成全部生产流程

对加工各个阶段的最佳管控
按照客户的需求可快速供货

“Fire Safe”认证

阀门在火灾环境下的密封性保障

ATEX认证

可安装于潜在易爆的环境内

“TA LUFT排放泄漏”认证

更高的阀杆外端密封性保障

API6D认证

适用于石油&天然气和石油化工领域
流程和产品的最佳可追溯性。

PED认证

完全符合欧盟有关加压装置的安全条例

最高达SIL3等级的认证

更高的运行安全等级

标准配置
• 浮动球体,全通径亦提供小通径型号。
• TFM 1600密封软座
• 法兰接口标准:EN 1092-1;ASME B16.5
• 使用温度请查阅压力/温度图表
• 压力等级:PN16-40;ANSI 150-300
• 密封等级:EN12266-1 A级
• 截止流体:空气、水、天然气、石油和石化产品。
• EN12266-2 防静电装置
• 阀杆密封:TFM 1600材质多层V形密封套件
• 阀杆额外密封件为FKM材质的O形圈
• 防喷溅阀杆
• 适用于ISO5211执行器的孔位设计
• 封闭角度>7°

选装配置

• 有关其他法兰接口类型的详情,请联络我司的销售部门。
• 密封件材质:玻璃纤维填料PTFE(RPTFE-GF),碳石墨填料PTFE(RPTFE-CF)。有关其他类型的材料,请联络我司的销售部门
• 单向运行+球体压力补偿孔
• 不锈钢手柄
• 不锈钢螺母和阀杆弹簧
• 有关标准之外的特殊材质配置(阀体/球体/阀杆),请联络我司的销售部门
• 可选装ATEX标识和认证

认证
• 符合欧盟《2014/68/UE》加压装置条例;挥发性排放标准ISO 15848 (ISO FE BH-C03-SSA 0);TA-LUFT VDI 2440;防火安全:ISO 10497/API607
• API 6D:6D-1007号认证仅针对ANSI标准阀轴阀门
• 安全等级最高可达SIL 3,符合IEC 61508的规定
• 符合欧盟《2014/34/UE》ATEX防爆条例,可选装ATEX认证型号

设计准则

• 阀体厚度满足:ISO 10497 / API 607ASME B16.34, ASME VIII div.1, EN 12516。
• API 6D
• 材质和评级满足ANSI标准阀门的ASME B16.34规范,PN标准阀门满足EN 12516规范


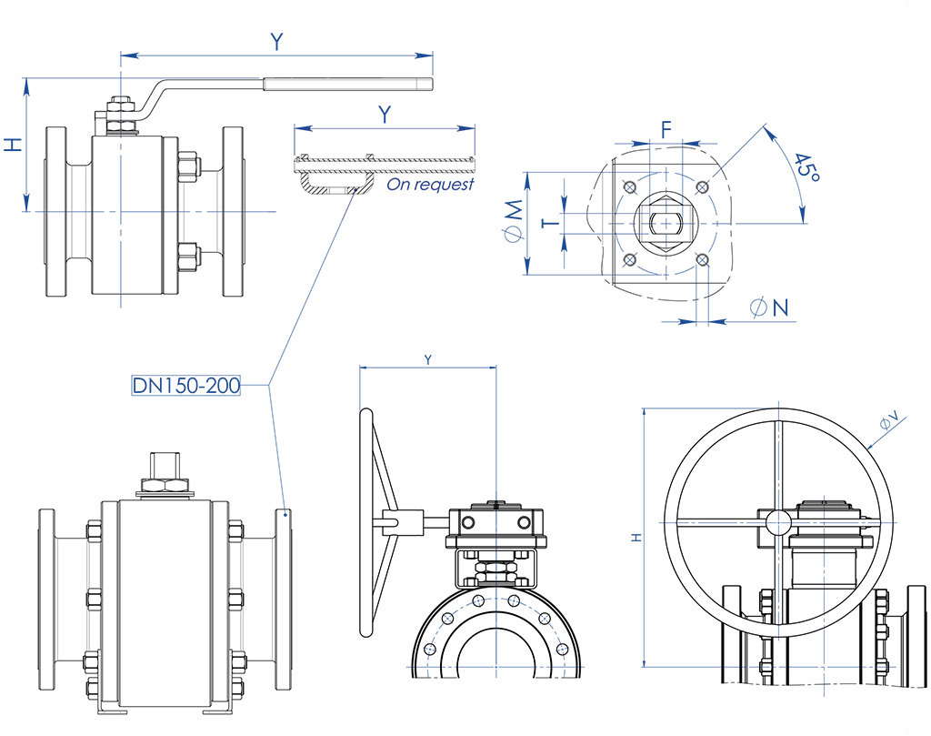
尺寸规格
尺寸规格
H
Y
∅V
∅M
∅N
F/T
接头ISO
手柄套件 
DN [mm]
[inch]
DN 15
1/2"
71
140
---
36
M5
10/6
F03
KLV58004
DN 20
3/4"
73
140
---
36
M5
10/6
F03
KLV58004
DN 25
1"
87
150
---
42
M5
12/8
F04
KLV58006
DN 32
1" 1/4
91
150
---
42
M5
12/8
F04
KLV58006
DN 40
1" 1/2
108
275
---
50
M6
16/10
F05
KLV58008
DN 50
2"
118
275
---
50
M6
16/10
F05
KLV58008
DN 65
2" 1/2
143
350
---
70
M8
22/14
F07
KLV58010
DN 80
3"
150
350
---
70
M8
22/14
F07
KLV58010
DN 100
4"
198
450
---
102
M10
30/18
F10
KLV58012
DN 125
5"
208
450
---
102
M10
30/18
F10
KLV58012
DN 150 PN16 - ANSI150 (*)
6"
522
326
400
140
M16
45/30
F14
---
DN 150 PN25-40 - ANSI300
6"
522
347,5
600
140
M16
45/30
F14
---
DN 200 PN16-PN25-ANSI150 (*)
8"
516
347
500
140
M16
52/35
F14
---
DN 200 PN40
8"
614
348
500
140
M16
52/35
F14
---

适用公称直径DN150和DN200,配备手动变速器的标准型号。
(*)可选装配备操纵手柄的型号。

 -PN-尺寸规格
尺寸
∅E
PN
A
B
C
∅G
∅R
S
P
∅H
孔数
∅I
Kg
L
密封套件
DN [mm]
[inch]
DN 15
1/2”
13
PN 16-40
32
52
10
95
45
2
16
65
4
14
3,0
115 (1)
KGBV485040
DN 20
3/4”
19
PN 16-40
35
55
10
105
58
2
18
75
4
14
3,8
120 (1)
KGBV485050
DN 25
1”
25
PN 16-40
42
68
15
115
68
2
18
85
4
14
5,2
125 (1)
KGBV485060
DN 32
1” 1/4
32
PN 16-40
47
73
15
140
78
2
18
100
4
18
7,6
130 (1)
KGBV485070
DN 40
1” 1/2
38
PN 16-40
58
93
21
150
88
3
18
110
4
18
10
140 (1)
KGBV485080
DN 50
2”
51
PN 16-40
67
102
21
165
102
3
20
125
4
18
14,3
150 (1)
KGBV485090
DN 65
2” 1/2
64
PN 16
83
130,5
28,4
185
122
3
18
145
4
18
20,2
170 (1)
KGBV485100
DN 65
2” 1/2
64
PN 25-40
83
130,5
28,4
185
122
3
22
145
8
18
28,2
270 (2)
KGBV485100
DN 80
3”
76
PN 16-40
90
137,5
28,4
200
138
3
24
160
8
18
25,4
180 (1)
KGBV485110
DN 100
4”
102
PN 16
111
172
35
220
158
3
20
180
8
18
38
190 (1)
KGBV485120
DN 100
4”
102
PN 25-40
111
172
35
235
162
3
24
190
8
22
57,8
300 (2)
KGBV485120
DN 125
5”
118
PN 16
117
182
35
250
188
3
22
210
8
18
68
325 (2)
KGBV485130
DN 150(*)
6”
152
PN 16
154
227,5
40,5
285
212
3
23
240
8
22
121
350 (2)
KGBV485140
DN 150
6”
152
PN 25-40
154
227,5
40,5
300
218
3
28
250
8
26
125
350
KGBV48514D
DN 200(*)
8”
203
PN 16
188
274
44,8
340
268
3
24
295
12
22
198
400 (2)
KGBV485150
DN 200(*)
8”
203
PN 25
188
274
44,8
360
310
3
30
310
12
26
220
457
KGBV485150
DN 200
8”
203
PN 40
195
274
44,8
375
285
3
34
320
12
30
250
502
KGBV48515D

-ANSI-尺寸规格
尺寸
∅E
ANSI
A
B
C
∅G
∅R
S
P
∅H
孔数
∅I
Kg
L
密封套件
DN [mm]
[inch]
DN 15
1/2”
13
ANSI 150
32
52
10
90
35
1,6
11,2
60,3
4
16
3,0
108 (3)
KGBV485040
DN 15
1/2”
13
ANSI 300
32
52
10
95
35
1,6
14,5
66,7
4
16
2,7
140 (3)
KGBV485040
DN 20
3/4”
19
ANSI 150
35
55
10
100
43
1,6
13
69,9
4
16
3,1
117(3)
KGBV485050
DN 20
3/4”
19
ANSI 300
35
55
10
115
43
1,6
16,6
82,6
4
19
4,2
152(3)
KGBV485050
DN 25
1”
25
ANSI 150
42
68
15
110
51
1,6
14,5
79,4
4
16
4,5
127 (3)
KGBV485060
DN 25
1”
25
ANSI 300
42
68
15
125
51
1,6
18
88,9
4
19
5,9
165 (3)
KGBV485060
DN 32
1” 1/4
32
ANSI 150
47
73
15
115
63,5
1,6
16,1
88,9
4
16
6,2
140 (3)
KGBV485070
DN 32
1” 1/4
32
ANSI 300
47
73
15
135
63,5
1,6
19,5
98,4
4
19
8,7
178 (3)
KGBV485070
DN 40
1” 1/2
38
ANSI 150
58
93
21
125
73
1,6
18
98,4
4
16
9,4
165 (3)
KGBV485080
DN 40
1” 1/2
38
ANSI 300
58
93
21
155
73
1,6
21
114,3
4
22
12
190 (3)
KGBV485080
DN 50
2”
51
ANSI 150
67
102
21
150
92
1,6
19,6
120,7
4
19
13,3
178 (4)
KGBV485090
DN 50
2”
51
ANSI 300
67
102
21
165
92
1,6
22,6
127,0
8
19
16,5
216 (4)
KGBV485090
DN 65
2” 1/2
64
ANSI 150
83
130,5
28,4
180
104,8
1,6
22,6
139,7
4
19
23,1
191 (4)
KGBV485100
DN 65
2” 1/2
64
ANSI  300
83
130,5
28,4
190
104,8
1,6
26,1
149,2
8
22
27,3
241 (4)
KGBV485100
DN 80
3”
76
ANSI 150
90
137,5
28,4
190
127
1,6
24
152,4
4
19
27
203 (4)
KGBV485110
DN 80
3”
76
ANSI 300
96
137,5
28,4
209
127
1,6
29
168,3
8
22
38,1
282 (4)
KGBV485110
DN 100
4”
102
ANSI 150
111
172
35
230
157,2
1,6
24,6
190,5
8
19
46
229 (4)
KGBV485120
DN 100
4”
102
ANSI 300
111
172
35
255
157,2
1,6
32,6
200,0
8
22
67,7
305 (4)
KGBV485120
DN 125
5”
118
ANSI 150
117
182
35
255
185,7
1,6
24,5
215,9
8
22
62
254 (3)
KGBV485130
DN 125
5”
118
ANSI 300
125
182
35
280
185,7
1,6
36,6
235
8
22
94
381 (3)
KGBV485130
DN 150(*)
6”
152
ANSI 150
154
227,5
40,5
280
216
1,6
25,6
241,3
8
22
126
394 (4)
KGBV485140
DN 150
6”
152
ANSI 300
154
227,5
40,5
320
216
1,6
37,6
269,9
12
22
147
403
KGBV48514D
DN 200(*)
8”
203
ANSI 150
188
274
44,8
345
269,9
1,6
29,5
298,5
8
22
210
457 (4)
KGBV485150

 适用公称直径DN150和DN200,配备手动变速器的标准型号。
(*)可选装配备操纵手柄的型号。
(1) EN558 TAB.2 COL.14/DIN 3202-1 F4(2) EN558 TAB.2 COL.15/DIN 3202-1 F5(3) ANSI B16.10(4) B16.10/API6D

​​​​

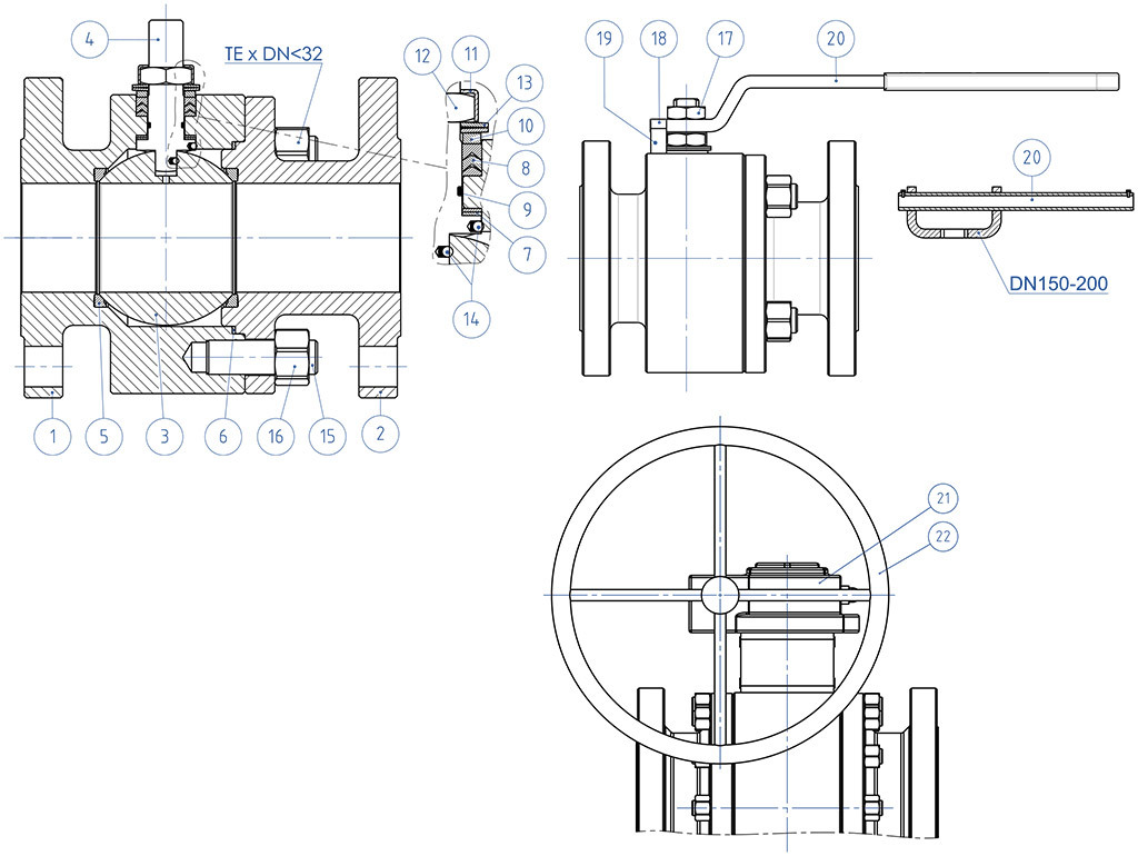
材质
PN16-40 ANSI 150-300 杆式  
编号。
介绍
316 不锈钢
1
阀体
ASTM A182 F316 / A479TP.316
(1.4401 / X5CrNiMo17-12-2)
2
法兰接口
3
球体
ASTM A351 CF8M (1.4408/GX5CrNiMo19-12-2)
4
阀杆
A564 TP.630 (17-4PH)
5*
阀座
TFM1600 (.) (2)
6*
阀体-法兰接口密封垫
填料石墨
7*
阀杆下密封件
TFM1600 (.)
8*
雪佛龙密封件
TFM1600 (.)
9*
内杆O形圈
FKM (.)
10
密封顶环
304 不锈钢
11
螺母锁片
304 不锈钢
12
内杆螺母
UNI 3740-1 6S 镀锌 (x)
13
碟型弹簧50CrV4 镀锌 (xx)
14
防静电装置
316 不锈钢
15
双头螺栓
ASTM A193-B8
16
螺母
ASTM A194-Gr.8
17
锁止螺母
UNI 3740-1 6S 镀锌(x)
18
止动螺栓
A2-70 UNI 3740 (304 )
19
限位杆
镀锌碳钢 (x)
20
手柄
Fe37 镀锌(x)
21
变速器
铸铁(涂漆)
22
手轮
Fe 42 UNI 7091
* 密封套件的组件

 可选装型号:
(x): 304不锈钢
(xx): 301不锈钢
(2) 戴维龙用于:DN150 PN25-40 - ANSI300, DN200 PN40.
(.): 可选装的其他材料。


碳钢阀体阀门的压力/温度图表

不锈钢阀体阀门的压力/温度图表

流量/压力损失图表和公称系数Kv

流量系数Kv的数值等于压降为1 bar时的流量值(单位为m3/h,水温为15℃)。

TFM-1600密封座和水(*)作为截止液体条件下的起动扭矩(Nm)
尺寸
DN 15
DN 20
DN 25
DN 32
DN 40
DN 50
DN 65
DN 80
DN 100
DN 125
DN 150
DN 200
0 bar












PN16 bar
8
13
19
28
42
61
85
128
220
245
405
690
PN25 bar
9,5
14,5
20
29
43
66
98
158
252
383


PN40 bar
11
16
21
31
44
72
108
165
292
510


ANSI 150-20 bar
9
14
19,5
30
43
65
96
153
243
360
480
750
ANSI 300-50 bar
12
18
22
32
46
80
115
180
302
570



 (*):若截止液体为脱脂液和/或包含特定颗粒物的液体,则操纵扭矩应高于图表中的数值。
以Nm为单位的扭矩值可能在温度和液体类型的作用下发生变化。纳入考虑的安全因子为1.4。在频繁开闭的循环条件下,操纵扭矩可能会略低于初始扭矩。
确定气动执行器的尺寸时考虑的最低供应压力为5.6 Barg。

手柄专用外杆延长套

材质 

组件编号.

介绍

材质

1
延长套
AISI304不锈钢
2
传动轴
AISI 430 F
3
衬套
DELRIN
4
O形圈
NBR
5
手柄
Fe37 镀锌(*)
6
螺母
镀锌碳钢(*)
7
手柄止动杆
镀锌碳钢(*)
8
止动杆螺栓
A2-70
9
定距片
PTFE 碳填充


(*): 可选配304不锈钢


尺寸规格
ISO标准阀门
ØA
ØB
ØM
ØN
F/T
X
Y
F03
36
5,5365,510/638,5141,5
F04
425,542M512/845,5151,5
F05
506,5506,516/1048,5276,5
F07
708,5708,522/1457,5351,5
F10
102111021130/1879,5451,5


注意:延长套的代码取决于驱动类型和阀门接头;请在下订单时询问细节。

执行器专用外杆延长套

材质

组件编号.

介绍

材质

1
延长套
ASTM A351 CF8M
2
传动轴
AISI 430 F
3
衬套
DELRIN
4
O形圈
丁腈橡胶


注意:延长套的代码取决于驱动类型和阀门接头;请在下订单时询问细节

手柄专用焊接外杆延长套

材质    
组件编号.
介绍
材质
1
延长套
304 s.s.
2
传动轴
AISI 430 F
3
衬套
DELRIN
4
O形圈
NBR
5
手柄
Fe 37 镀锌碳钢 (*)
6
螺母
镀锌碳钢(*)
7
手柄止动杆
镀锌碳钢(*)
8
止动杆螺栓
A2-70
9
止动杆螺母
A2-70 (**)
10
定距片
PTFE 碳填充


(*):可选配304不锈钢
(**): 未存在于ISO F04接头的阀门

尺寸规格
ISO标准阀门
ØA
ØB
ØM
ØN
F/T
X
Y
F03
36
5,5365,510/638,5141,5
F04
425,542M512/845,5151,5
F05
506,5506,516/1048,5276,5
F07
70970922/1457,5351,5
F10
102111021130/1879,5451,5


注意:延长套的代码取决于驱动类型和阀门接头;请在下订单时询问细节。

执行器专用外杆延长套

材质    
组件编号.
介绍
材质
1
延长套
304 S.S.
2
传动轴
AISI 430 F
3
衬套
DELRIN
4
O形圈
NBR


注:延长套的代码取决于驱动类型和阀门接头;请在下订单时询问细节

配备额外密封件的延长套

材质
组件编号
介绍
材质
1
延长套
304 s.s
2
传动轴
AA564 TP.630 (17-4ph)
3
抗磨环
TFM1600
4
O形圈
FKM
5
V形密封套件
TFM1600
6
密封顶环
304 s.s
7
碟型弹簧
50CrV4 镀锌
8
内杆螺母
UNI 3740-1 6S 镀锌
9
螺母锁片
304 s.s
10
密封件
天然石墨


尺寸规格
ISO标准阀门
ØA
ØB
ØM
ØN
F/T
CD
F03
36
5,5
36M510/6
2010,2
F04
42
5,5
42M512/8
2615,1
F05
50
6,550M616/10
3521,2
F07
70
8,570M822/14
47,528,4
F10
102
10,5102M1030/18
6135,2

注意:延长套的代码取决于驱动类型和阀门接头;请在下订单时询问细节。

配置 驾驶
选择搜索参数
搜索文章